NUBIA Residencial, San Bernardino Tlaxcalancingo, Pue., México
Torres Serena Nubia Residencial – departamentos en venta con 95 m2 de construcción.
Imagina vivir rodeado de confort, exclusividad y plusvalía. Torres Serena es un desarrollo boutique de solo 24 departamentos, ubicado dentro de Nubia Residencial, frente a Lomas de Angelópolis y sobre la lateral de Vía Atlixcáyotl, la zona con mayor crecimiento y proyección de Puebla.
Cuenta con conectividad inmediata hacia centros comerciales (Angelópolis, Sonata, Explanada), además de Universidades, Hospitales y vialidades principales.
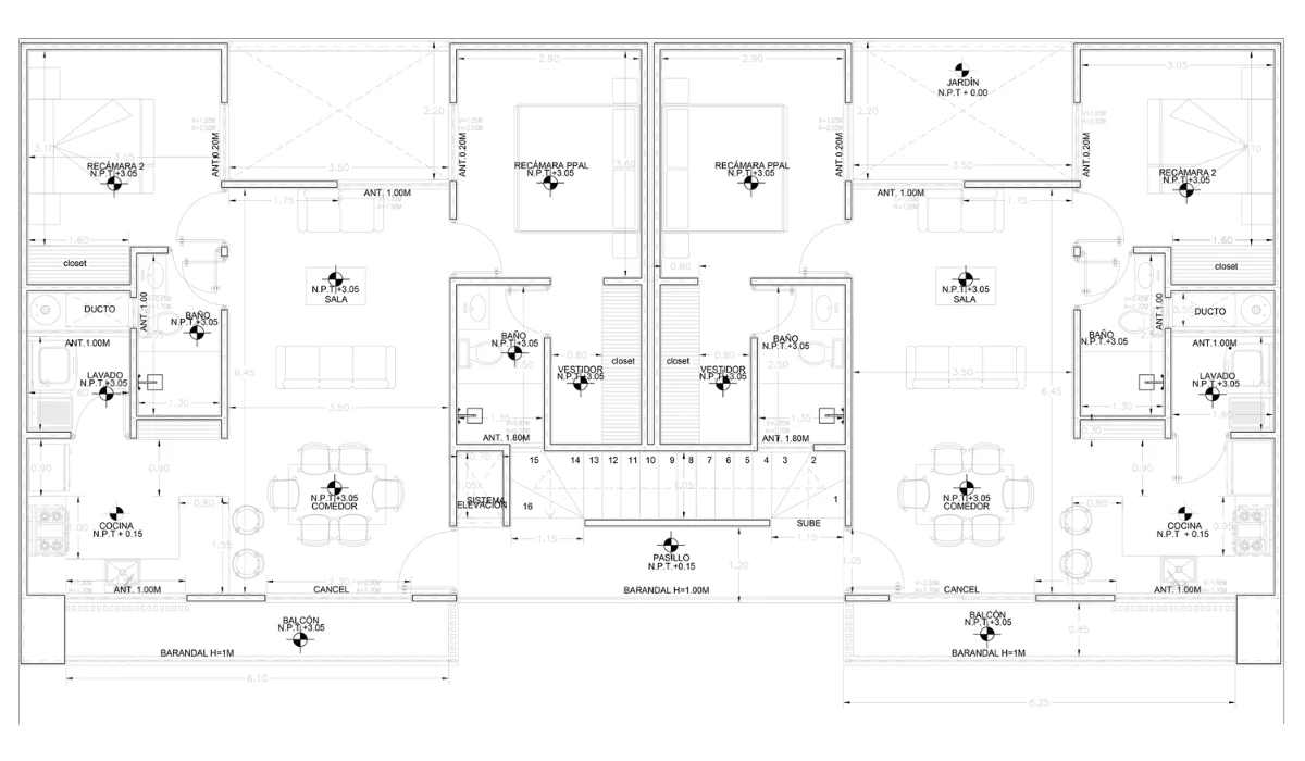
Distribución del departamento
– Sala y comedor amplios con excelente iluminación natural
– Cocina integral equipada con barra de granito
– Recámara principal con vestidor y baño completo
– Recámara secundaria con clóset
– Baños completo compartido con recámara y área social
– Área de lavado
– Balcón
– 2 cajones de estacionamiento
Invertir en Torres Serena es asegurar plusvalía constante, gracias al crecimiento residencial, comercial y de servicios en el corredor Atlixcáyotl. Asimismo cuenta con acabados de lujo; pisos de porcelanato en áreas principales, cerámico tipo madera para mayor calidez, barra y cubierta en granito en cocina, carpintería de parota, entre otros.
Además de contar con amenidades exclusivas para disfrutar sin salir de tu hogar.
– Alberca techada
– Gimnasio equipado, salón de yoga y área de spinning
– Sports bar para reuniones y entretenimiento
– Canchas de pádel
– Ludoteca y jardines para disfrutar en familia
– Salón de eventos y usos múltiples
Sin duda, Torres Serena es una inversión que crece contigo, tanto para vivir como para invertir en un patrimonio que seguirá aumentando su valor.
¿Necesitas más información?
¿Deseas agendar una cita para conocer el inmueble?
¿Tienes dudas?
Llámanos o escríbenos… 👇🏼👇🏼 Contacto Express 👇🏼👇🏼
Disponibilidad y Precio sujetos a cambios sin previo aviso.
Por favor contacte a un asesor para verificar disponibilidad y precio.
Las marcas registradas y logotipos mostrados en este sitio web, son propiedad de sus respectivos propietarios y titulares y son utilizados únicamente con fines enunciativos.
Somos expertos inmobiliarios en Lomas de Angelópolis.
Tenemos la casa de tus sueños.
Seremos breves… Si deseas invertir en bienes raíces, contamos con el proyecto para tu inversión en la mejor zona de Puebla y con la más alta plusvalía, Lomas de Angelópolis. Llámanos y uno de nuestros asesores te atenderá para ofrecerte más información. Somos generadores de nuevos dueños.
Deseas vender, comprar o rentar? Casa, departamento o terreno? Nosotros te asesoramos.
Te ayudamos a tramitar tu crédito Hipotecario; nuestros Brokers buscarán el mejor banco para poder personalizar tu crédito. Con nosotros cada crédito es personalizado. Somos expertos expertos inmobiliarios.
Para una mejor coordinación en su recorrido favor de agendar a través de WhatsApp al +52 222 216 86 56
*Fecha y horarios sujetos a disponibilidad.
Desde $ 14,000 el M2 de Construcción
View Details$ 7,100,000
View Details$ 6,820,000
View Details